Top-gepflegtes Familienhaus
Neu





















Objektart
Haus
Objekttyp
Doppelhaushälfte
Vermarktungsart
Kauf
PLZ
06772
Ort
Möhlau
ImmoNr
LT-304-26
Wohnfläche
ca. 180 m²
Grundstücksgröße
ca. 1.400 m²
Anzahl Zimmer
7
Kaufpreis
249.000,00 €
Baujahr
1939
Endenergieverbrauch
61,2 kWh/(m²a)
Energieausweis
Verbrauchsausweis
Energieausweis gültig bis
05.02.2031
Energieeffizienzklasse
B
Außen-Provision
3,57 % inkl. MwSt.
Beschreibung
Diese Doppelhaushälfte verbindet moderne Wohnbereiche mit einem großzügigen Grundstück und vielseitigen Nutzungsmöglichkeiten. Sie eignet sich ideal für Familien, die ein Zuhause mit Platz im Innen und Außenbereich suchen.Ein großer Vorteil der Immobilie ist die bereits vollständig modernisierte Elektrik. Das nimmt vielen Käufern die typische Sanierungsangst und schafft eine solide technische Grundlage. Ergänzend überzeugt die Immobilie durch eine sehr gute energetische Substanz: Die Fassade wurde ca. 2005 mit einem Wärmedämmverbundsystem versehen, das Dach bereits ca. 1995 gedeckt, gedämmt und vollständig ausgebaut sowie die Fenster im Jahr 2001 durch isolierverglaste Elemente ersetzt. Diese Maßnahmen spiegeln sich auch in der Energieeffizienzklasse B wider. Auch die vorhandene Einbauküche ergänzt den Wohnbereich praktisch und alltagstauglich.
Besonders hervorzuheben ist die im Jahr 2024 umfassend modernisierte Küche. Neben der Erneuerung von Elektrik und Innenausbau wurde eine hochwertige, maßgefertigte Einbauküche mit Kochinsel, integrierter Deckenlüftung sowie Markengeräten verbaut. Der Investitionswert liegt bei rund 30.000 € - die Küche verbleibt im Objekt und ist im Kaufpreis enthalten.
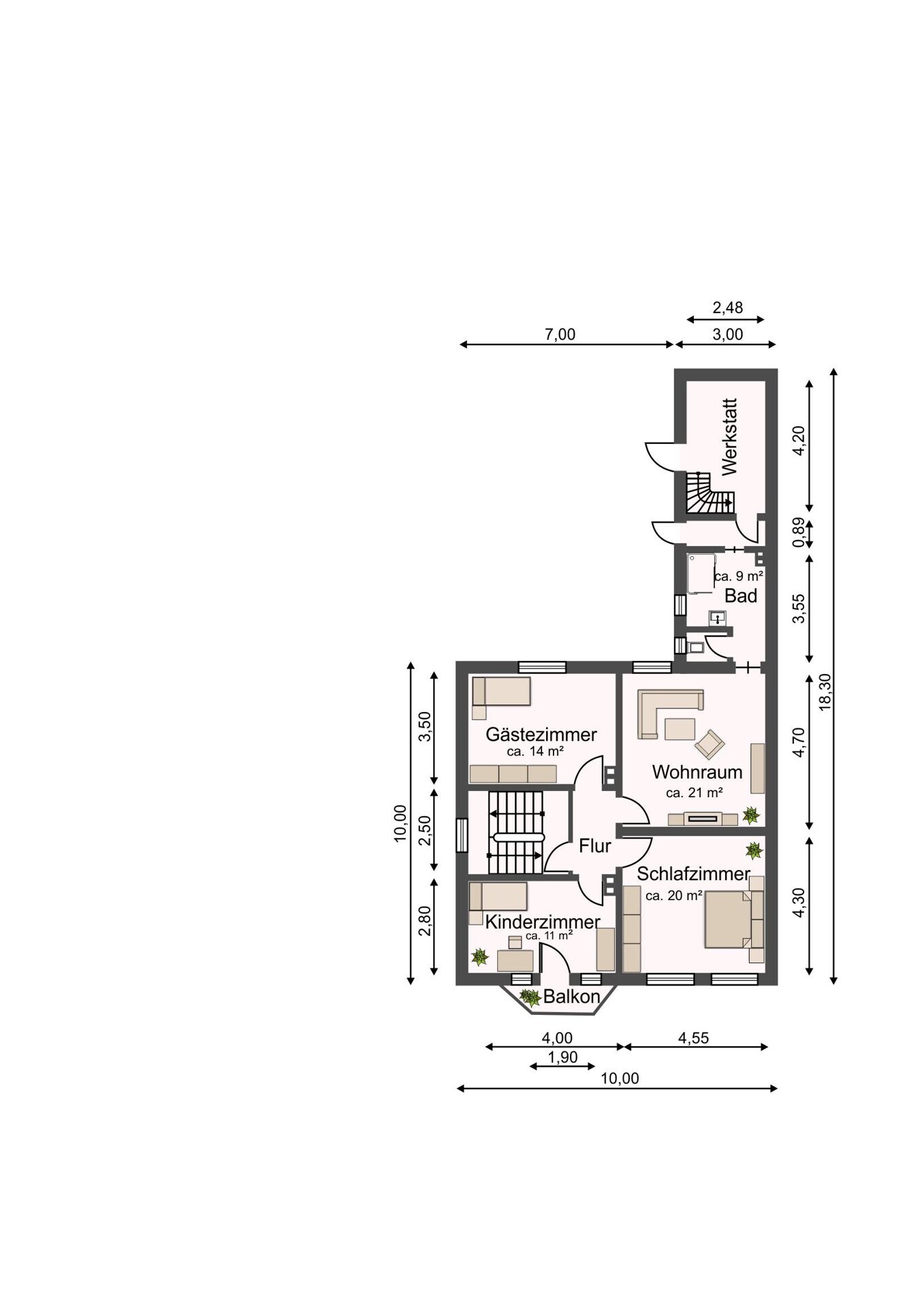
Im Haus stehen helle, gut nutzbare Räume zur Verfügung, die sich flexibel als Wohn, Schlaf, Kinder oder Arbeitszimmer nutzen lassen. Zusätzliche Nutzfläche bietet der Keller. Auch im Bereich Sanitär wurden laufend Modernisierungen vorgenommen: Das Badezimmer im Obergeschoss stammt aus dem Jahr 2010 und verfügt über eine Fußbodenheizung, während Badewanne und Leitungen zuletzt 2024 erneut modernisiert wurden.
Im Außenbereich überzeugt die Immobilie mit viel Freizeitfläche und einem großzügigen Garten, der Raum für Kinder, Haustiere und individuelle Gestaltung bietet. Ein besonderes Highlight ist der große Aufstellpool, der in den Sommermonaten für ein angenehmes Freizeitgefühl im eigenen Zuhause sorgt.
Eine separate Garage sowie zusätzliche Stellflächen auf dem Grundstück sorgen für komfortable Parkmöglichkeiten. Nebengebäude bieten darüber hinaus viel Stauraum sowie Platz für Werkstatt, Hobby oder auch ein Wohnmobil. Gleichzeitig eröffnen sie weiteres Potenzial, etwa für Home Office, Gästezimmer oder andere Nutzungsideen. Auch die großen Dachflächen auf den Nebengebäuden sind im Hinblick auf eine spätere Photovoltaiknutzung interessant.
Die vorhandene Nachtspeicherheizung wurde überwiegend nach 2000 erneuert und wird durch eine smarte Steuerung über Raumthermostate sowie eine wettergeführte Zentrale ergänzt. Zusätzlich wurde die Hausstromverteilung im Erdgeschoss 2024 erneuert und ein Smart Meter im Jahr 2025 installiert. Der Glasfaseranschluss mit bis zu 1.000 Mbit/s ermöglicht zudem eine moderne und leistungsstarke Internetanbindung.
Für Käufer, die sich mit alternativen Heizsystemen beschäftigen, bietet die Immobilie bereits durchdachte Perspektiven: Der Einbau eines Kamins ist problemlos möglich. Darüber hinaus kann das Haus mit einem Luft-Luft-Wärmepumpensystem (Split-Klima) ausgestattet werden. Die Investition hierfür liegt bei ca. 15.000 €, wobei eine Förderung möglich ist. Dadurch reduziert sich der Eigenanteil auf etwa 12.000 €, während gleichzeitig Heizkosten von bis zu 75 % eingespart werden können – bei zusätzlicher Kühlfunktion im Sommer.
Aktuell liegen die monatlichen Energiekosten bei ca. 250 € bis 270 € und bewegen sich damit - insbesondere für die Größe der Immobilie - in einem sehr nachvollziehbaren Rahmen.
Die Lage ist ruhig, familienfreundlich und ohne Durchgangsverkehr. Die gewachsene Nachbarschaft sorgt für ein angenehmes Wohnumfeld, besonders für Familien mit Kindern. Gleichzeitig liegt die Immobilie strategisch günstig zwischen Dessau, Bitterfeld und Gräfenhainichen und ist damit auch für Pendler attraktiv. Die Nähe zum Möhlauer See und zur Dübener Heide unterstreicht zusätzlich den hohen Freizeit und Erholungswert.
Lage
MikrolageDie Immobilie befindet sich in der Alt-Golpaer Straße im Ortsteil Möhlau, einem gewachsenen Wohngebiet mit überwiegend Ein- und Zweifamilienhäusern. Die Umgebung ist geprägt von ruhiger Wohnbebauung sowie großzügigen Grundstücken. Die Straße dient überwiegend dem Anliegerverkehr und verfügt über eine asphaltierte Fahrbahn sowie eine Straßenbeleuchtung. Im Ort selbst sind Einrichtungen des täglichen Bedarfs, kleinere Dienstleistungsangebote sowie soziale Einrichtungen vorhanden. Die ländlich geprägte Umgebung bietet zudem zahlreiche Möglichkeiten für Spaziergänge, Freizeitaktivitäten und Erholung im Grünen.
Makrolage
Möhlau ist ein Ortsteil der Stadt Gräfenhainichen im Landkreis Wittenberg in Sachsen-Anhalt und liegt verkehrsgünstig zwischen den Städten Dessau-Roßlau, Bitterfeld-Wolfen und Lutherstadt Wittenberg. Die umliegenden Städte sind mit dem Auto in kurzer Zeit erreichbar und bieten eine umfassende Infrastruktur mit Einkaufsmöglichkeiten, Schulen, medizinischer Versorgung sowie kulturellen Angeboten.
Durch die gute Anbindung an das regionale Straßennetz bestehen zudem schnelle Verbindungen in die umliegenden Wirtschaftsstandorte der Region. Das Oberzentrum Dessau-Roßlau übernimmt dabei wichtige Versorgungs- und Verwaltungsfunktionen für die Region.
Ausstattung
Innenausstattung• moderne Einbauküche mit Kochinsel
• maßgefertigte Einbauküche (2024) mit Markengeräten und integrierter Deckenlüftung (Investitionswert ca. 30.000 € - verbleibt im Objekt)
• separates Esszimmer
• weitere Räume nutzbar als Schlaf-, Kinder- oder Arbeitszimmer
• 2 Badezimmer mit Badewanne
• Bad im OG (2010) mit Fußbodenheizung
• Badewanne und Leitungen im Jahr 2024 modernisiert
• separate WC's vorhanden
• Treppenhaus mit offener Gestaltung
Technische Ausstattung
• Elektroheizung
• Nachtspeicherheizung überwiegend nach 2000 erneuert
• smarte Steuerung über Raumthermostate und wettergeführte Zentrale
• vorhandener Schornstein
• Kamin nachrüstbar
• Starkstromanschluss vorhanden
• Glasfaseranschluss verfügbar (bis zu 1.000 Mbit/s)
• teilweise erneuerte Stromleitungen (2024)
• neue Hausstromverteilung im Erdgeschoss (2024)
• Smart Meter (2025)
Fenster und Gebäude
• Fenster und Außentüren teilweise erneuert
• ISO-Doppelverglasung (2001) inkl. Rollos und Insektenschutz
• Außenfassade mit Wärmedämmverbundsystem (ca. 2005)
• Dach ca. 1995 erneuert, gedämmt und voll ausgebaut
• teilunterkellertes Gebäude
• Dachgeschoss ausgebaut bzw. nutzbar
Außenbereich
• großzügiges Grundstück mit vielseitigen Nutzungsmöglichkeiten
• überdachte Terrasse
• Garten mit Spielbereich
• Aufstellpool
Parkmöglichkeiten
• Garage außerhalb des Hauses
• mehrere Stellplätze auf dem Grundstück
Sonstiges
• zusätzlicher Eigenbrunnen vorhanden
• große Dachfläche mit Potenzial für Photovoltaik
• Vorbereitung für alternative Heizsysteme (z. B. Luft-Luft-Wärmepumpe / Split-Klima möglich)
Sonstige Angaben
Unsere Exposés entstehen auf Grundlage der Informationen der Eigentümer - auch die Maß- und Größenangaben. Eine Haftung unsererseits ist ausgeschlossen.Alle Angaben sind unverbindlich und nach bestem Wissen erstellt, ohne Gewähr auf Richtigkeit. Zwischenverkauf bleibt vorbehalten. Vertrauliche Informationen dürfen ohne Zustimmung nicht weitergegeben werden.
Seiten 1