Einfamilienhaus in Roitzsch
Neu




























Objektart
Haus
Objekttyp
Doppelhaushälfte
Vermarktungsart
Kauf
PLZ
06809
Ort
Roitzsch
ImmoNr
LT-281-25
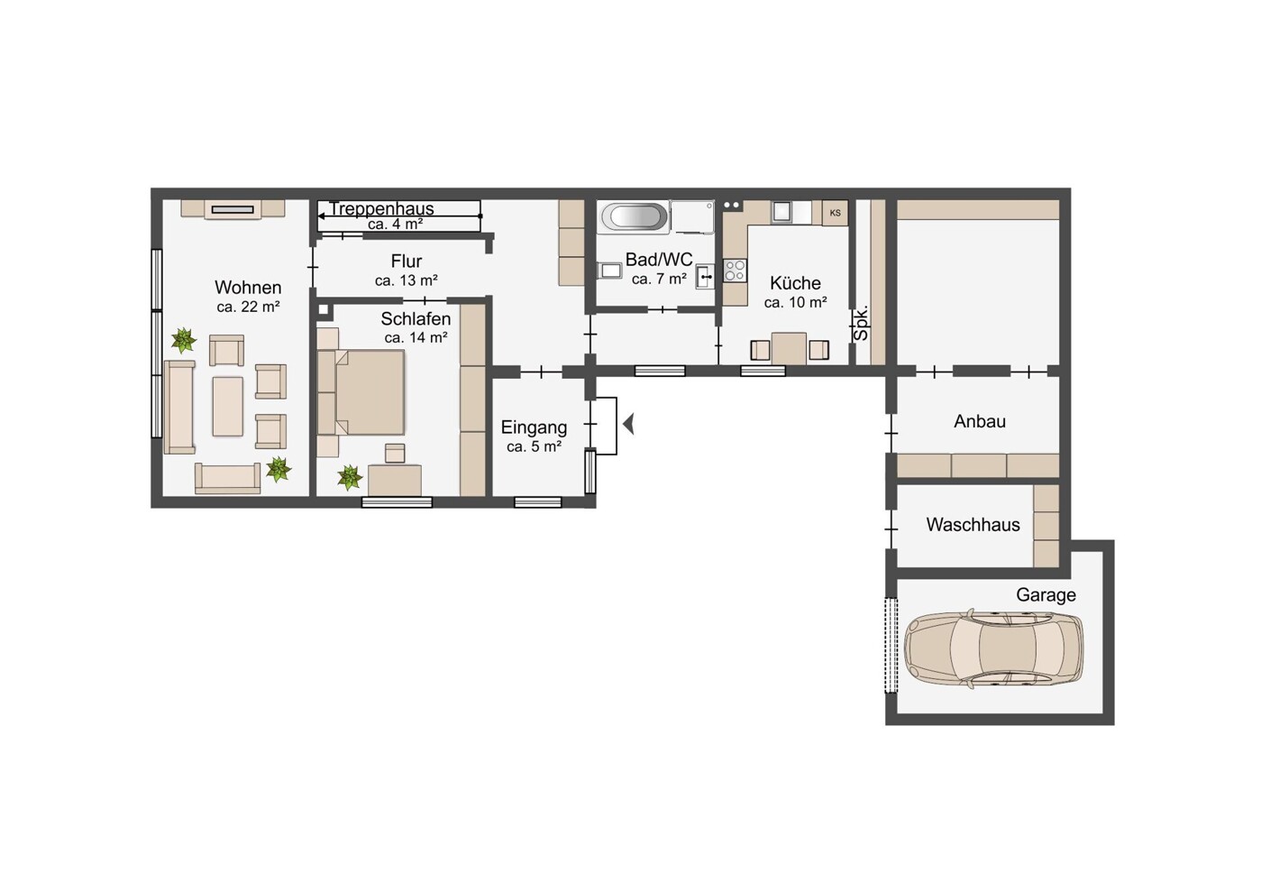
Wohnfläche
ca. 150 m²
Grundstücksgröße
ca. 460 m²
Nutzfläche
ca. 63 m²
Anzahl Zimmer
9
Anzahl Badezimmer
2
Kaufpreis
74.900,00 €
Endenergiebedarf
203,9 kWh/(m²a)
Energieausweis
Bedarfsausweis
Energieausweis gültig bis
09.12.2025
Energieeffizienzklasse
G
Außen-Provision
6,9 % zzgl. MwSt.
Beschreibung
Diese Immobilie befindet sich in einer ruhigen Lage und verfügt über mehrere Etagen mit vielseitig nutzbaren Wohnflächen, die sowohl für Familien als auch für handwerklich interessierte Käufer ideale Voraussetzungen schaffen. Das Haus befindet sich in einem altersentsprechenden Zustand und wurde über die Jahre teilweise instand gehalten, weist jedoch Bereiche mit Modernisierungsbedarf auf - ideal für alle, die ein Objekt nach eigenen Vorstellungen gestalten möchten.Mehrere Räume auf beiden Etagen ermöglichen flexible Nutzungskonzepte, etwa als Wohn-, Schlaf- oder Arbeitsbereiche. Die vorhandenen technischen Anschlüsse, die solide Bausubstanz sowie die gut nutzbaren Raumgrößen bilden eine funktionale Grundlage für zukünftige Wohnideen. Im Erdgeschoss steht zudem ein Bad mit barrierefreier Dusche zur Verfügung. Im Obergeschoss ergänzt ein Gäste-WC das Raumangebot.
Der Außenbereich des Hauses bietet neben einer erhöhten Terrasse zusätzliche Freifläche, die sich ideal für gärtnerische Nutzung oder individuelle Gestaltung anbietet. Ein Nebengelass schafft weiteren Stauraum sowie praktische Nutzungsmöglichkeiten für Hobby, Lager oder Werkstatt. Insgesamt bietet diese Immobilie ein interessantes Potenzial für Käufer, die ein Haus mit viel Platz, solider Bausubstanz und der Möglichkeit zur persönlichen Weiterentwicklung suchen.
Die Kombination aus großzügigen Flächen, modernisierungsfähigen Strukturen und nutzbaren Außenbereichen macht dieses Objekt zu einer attraktiven Grundlage für ein individuelles, zukunftsfähiges Zuhause.
Buchen Sie hier Ihren Besichtigungstermin. Termine, die nicht aufgeführt sind, sind nicht mehr verfügbar: https://www.timum.de/page/bac77cd5-a263-42cc-aa53-75d3167cb0fc
Hinweis für Interessenten:
• Wir beantworten Anfragen und vereinbaren Besichtigungstermine ausschließlich bei vollständigen Angaben (Name, Anschrift, E-Mail, Telefonnummer).
• Bitte haben Sie Verständnis, dass wir Besichtigungstermine in einem festen Rahmen anbieten. Uns ist bewusst, dass sich diese Zeiten nicht immer perfekt mit den individuellen Arbeitszeiten aller Interessenten vereinbaren lassen. Dennoch bitten wir darum, die angebotenen Termine wahrzunehmen, da wir nicht in jedem Fall individuelle Abweichungen ermöglichen können.
• Zudem bitten wir darum, sich bereits vor der Besichtigung mit Ihrer Bank über eine mögliche Finanzierung auszutauschen. So gehen Sie mit einem sicheren Gefühl und klaren Vorstellungen in den Termin.
Hinweis zur Courtage:
Die Käufercourtage beträgt 6,9 % des Kaufpreises zzgl. MwSt. Auch bei späteren Preisreduzierungen wird die Courtage auf Basis des ursprünglichen Angebotspreises berechnet.
Lage
MakrolageRoitzsch ist ein Ortsteil der Stadt Sandersdorf-Brehna im Landkreis Anhalt-Bitterfeld und liegt im mitteldeutschen Raum zwischen Bitterfeld-Wolfen, Halle (Saale) und Leipzig. Die Region zeichnet sich durch eine Mischung aus ländlicher Ruhe und guter verkehrlicher Anbindung aus, sodass sowohl Berufspendler als auch Familien von kurzen Wegen in die umliegenden Städte profitieren. Die Lage innerhalb der Leipziger Tieflandsbucht sorgt für eine offene, leicht zugängliche Landschaft mit einer guten Infrastruktur im Umkreis. Durch die Nähe zu wirtschaftlich bedeutenden Standorten wie Bitterfeld-Wolfen und Halle bestehen zahlreiche Arbeits- und Einkaufsmöglichkeiten, während die umliegenden Wälder, Felder und Naherholungsgebiete ein angenehmes Wohnumfeld schaffen.
Mikrolage
Die Petersrodaer Straße befindet sich in einem ruhigen, überwiegend wohngeprägten Bereich von Roitzsch und bietet ein angenehmes Umfeld mit gewachsener Nachbarschaft. Das direkte Wohnumfeld ist von Ein- und Mehrfamilienhäusern geprägt und vermittelt eine ruhige, überschaubare und familienfreundliche Atmosphäre. Einrichtungen des täglichen Bedarfs sowie Grundschule, Kindergarten und kleinere Dienstleister sind im Ort oder in den umliegenden Stadtteilen schnell erreichbar. Gleichzeitig besteht eine gute Anbindung an das regionale Straßennetz, wodurch sowohl Sandersdorf-Brehna als auch Bitterfeld-Wolfen in kurzer Zeit erreichbar sind. Insgesamt bietet die Mikrolage eine harmonische Kombination aus Ruhe, Alltagsnähe und guter Erreichbarkeit der umliegenden Ortschaften.
Ausstattung
Diese Immobilie überzeugt mit einer Ausstattung, die den Alltag spürbar erleichtert.Die gemütliche Terrasse lädt dazu ein, den Feierabend im Freien zu genießen - ob bei einem Kaffee am Morgen oder entspannten Stunden am Abend. Zusätzlich steht praktisches Nebengelass zur Verfügung, das ideal als Stauraum oder für Hobbyzwecke genutzt werden kann. Besonders vorteilhaft ist der vollunterkellerte Bereich, der weiteren Platz bietet und flexibel nutzbar ist. Die Wärmeversorgung erfolgt über eine Gasheizung, die über den im Garten befindlichen Gastank versorgt wird - zuverlässig, effizient und unabhängig vom öffentlichen Gasnetz. Ein Zuhause, das Komfort und Wohnqualität harmonisch vereint.
• Garten
• Terrasse
• Stellplatz im Hof
• Garage
• voll unterkellert
• Nebengelass
• 1 Hauptbad | ein Gäste-WC im OG
Sonstige Angaben
Unsere Exposés entstehen auf Grundlage der Informationen der Eigentümer - auch die Maß- und Größenangaben. Eine Haftung unsererseits ist ausgeschlossen.Alle Angaben sind unverbindlich und nach bestem Wissen erstellt, ohne Gewähr auf Richtigkeit. Zwischenverkauf bleibt vorbehalten. Vertrauliche Informationen dürfen ohne Zustimmung nicht weitergegeben werden.
Seiten 1